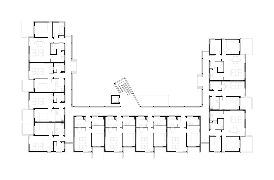
Die Wohnanlage liegt rückseitig der ortstypischen Zeilenbebauung. Die Gebäudeform erzeugt zwei neue Binnenräume: einen geschützten Hof für die Wohnnutzung und einen öffentlichen Platzbereich vis-à-vis historischer Schulgebäude. Die Wohnungen des U-förmigen Gebäudes orientieren sich nach Außen, die hofseitige Erschliessung erfolgt über Laubengänge. Der Treppenturm steht den Laubengängen als freie Skulptur vorgelagert. 3.400 m² Bgf, 31 Wohneinheiten






