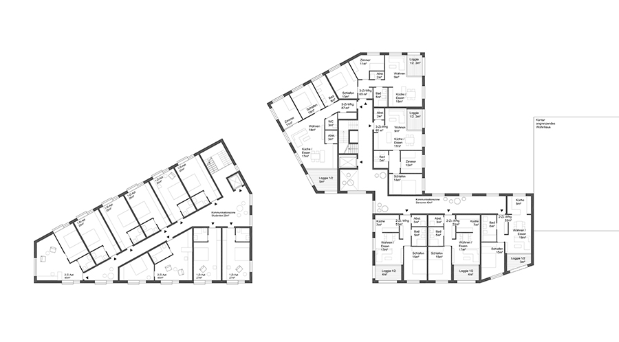
Das Projekt gliedert sich in ein heterogenes Umfeld ein, dass von dörflicher Kleinteiligkeit bis hin zu weitläufigen Verkehrsräumen und baulichen Großstrukturen durch Diskrepanzen im Maßstab gekennzeichnet ist. Es wird eine Komposition aus drei Kubaturen realisiert, die jeweils einzeln aber auch als Ensemble lesbar sind und somit elastisch auf die umliegenden Situationen reagieren. Die 3 Häuser rahmen dabei eine Durchwegung des Grundstücks, die in einen kleinen Platzbereich mündet. Dieser Ort ist gedanklich den oft kompakten Außenräumen einer gewachsenen dörflichen Struktur nachempfunden. Die Häuser sind in Grundfläche und Höhe so variiert, dass ein spannungsreiches Ensemble entsteht, dessen Bestandteile sich in wechselnden Perspektiven räumlich verschieben und überdecken. Die Häuser werden in Material, Textur und Farbe differenziert, wobei der Zusammenhalt einer durchgängigen Gestaltung gewahrt bleiben soll. 4.500 m² Bgf, Wohnen, Boardinghouse und Gewerbe Wettbewerb 1.Preis





